1. Основные плавила размещения ниш и отверстий в стенах и их усиление
1.1. Общие рекомендации по размещению отверстий в стенах
- Не допускается располагать отверстия в стенах в ряд из нескольких штук, это отрезает стены от конструкций выше. Все отверстия (группы отверстий) размером более 1000 мм в плане, или длинной более 30% длины стены нужно обговаривать с конструкторами и учитывать в расчетной модели.
- Допускается выполнять отдельные отверстия диаметром до 50 мм без согласования их положения. Устройство таких отверстий необходимо производить до бетонирования конструкций.
- При высоте отверстия более 1000 мм обеспечивать ширину простенка не менее 1000 мм.
- Необходимо сокращать количество проемов по длине стены, располагая их друг под другом.
- Не допускается располагать отверстия в стенах под колоннами.
1.2. Размещение отверстий в зоне дверных проемов
При наличии отверстий ИОС над дверными проемами необходимо обеспечить возможность усиления ослабленных участков (см. Рисунок 1).
[1] – зона усиления конструкций, перерезать которую нельзя (указаны минимально необходимые габариты).
[2] – минимальная высота жб перемычки над проемом шириной до 2000 мм должна быть 300 мм (см. Рисунок 2).
Рисунок 1
Рисунок 2
По возможности проемы ИОС необходимо выровнять по высоте.
При этом, если отверстие не доходит до низа плиты перекрытия меньше чем на 150мм [3], нужно увеличивать его высоту и располагать под плитой перекрытия (см. Рисунок 3).
Рисунок 3
1.3. Размещение отверстий в зоне растянутых по длине групп проемов
При наличии проемов ИОС, расположенных на участке длиной более 3000 мм, необходимо установить железобетонную перемычку под плитой, а сами проемы, по возможности, сгруппировать в один (см. Рисунок 4).
[1] – зона усиления конструкций, перерезать которую нельзя (указаны минимально необходимые габариты высоты).
Рисунок 4
1.4. Размещение отверстий в шахматном порядке поэтажно
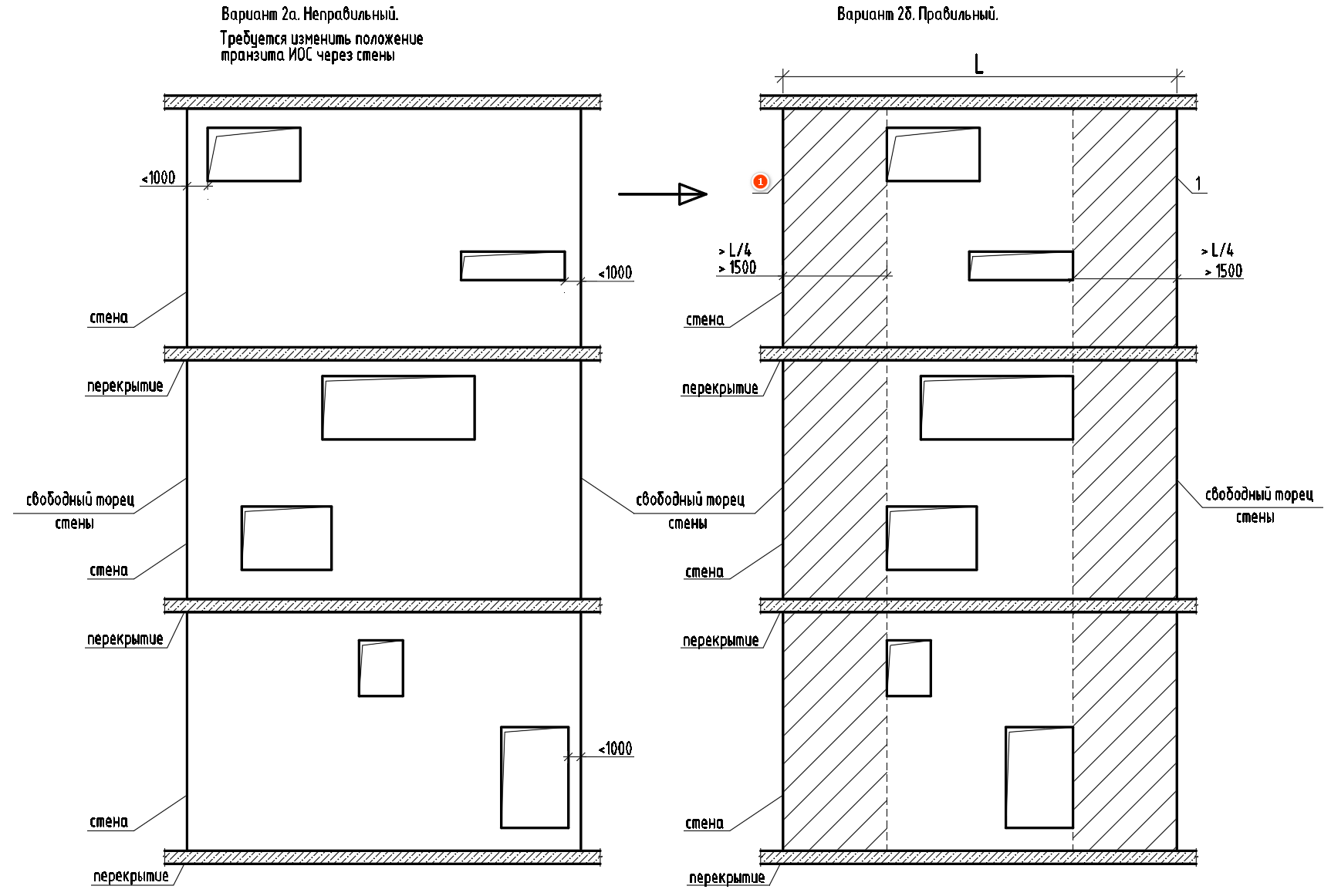
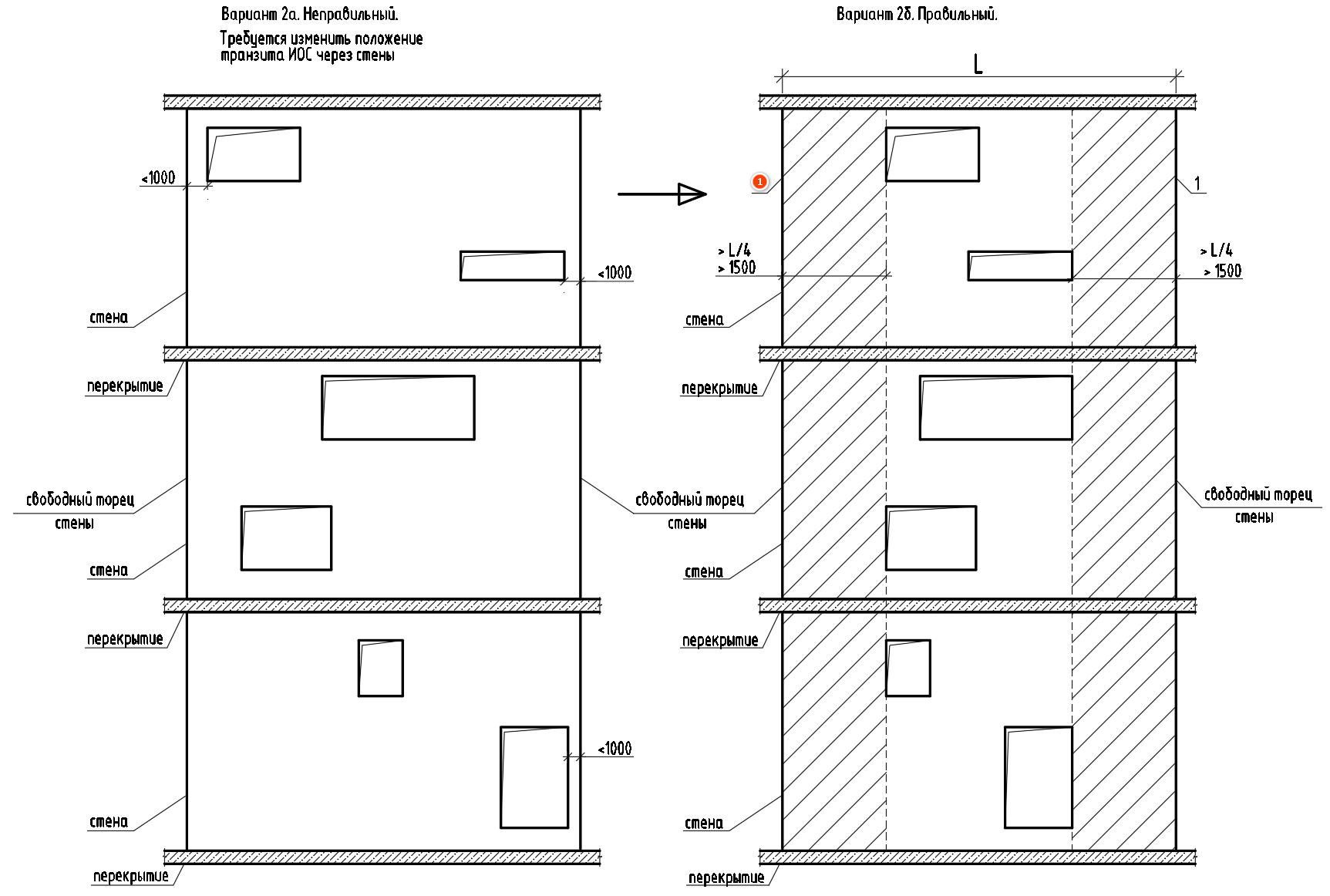
При наличии проемов ИОС, расположенных в шахматном порядке поэтажно необходимо соблюдать ряд требований и рекомендаций (см. Рисунок 5).
Проемы необходимо сгруппировать в единый блок по ширине, учитывая, что расположение проемов на расстоянии менее 1500 мм или L/4 (где L — длина стены) от торца стены — не допускается (см. Рисунок 5).
[1] – зона усиления конструкций, перерезать которую нельзя (указаны минимально необходимые габариты).
Рисунок 5
1.5. Объединение отверстий при их пересечении
При пересечении проемов между собой, их необходимо либо объединить в единый проем, либо раздвинуть, соблюдая минимально допустимые расстояния между отдельными проемами (см. Рисунок 6).
Рисунок 6
1.6. Размещение отверстий у пересечений стен и их свободных торцов
В зонах свободных торцов и пересечений стен возникают максимальные концентрации напряжений. Необходимо располагать проемы на расстоянии не менее 1000 мм от пересечений стен и не менее 1500 мм от их свободных торцов (см. Рисунок 7).
Рисунок 7
1.7. Рекомендации по размещению отверстий в стенах основного ядра здания
При размещении отверстий в стенах основного ядра здания необходимо соблюдать следующие рекомендации:
- Располагать проемы друг над другом по высоте. Это сокращает их общее количество и минимизирует ослабление конструкции.
- Контролировать площадь отверстий в стенах. Если проемы перерезают в плане более 30% стен основного ядра здания, ядро начинает терять пространственную жесткость. При перерезании более 60% стен ядро перестает работать как несущий элемент (см. Рисунок 8).
- Не располагать несколько отверстий в ряд в плане. Такое расположение приводит к отсечению стены от конструкций выше.
Рисунок 8
1.8. Размещение отверстий в стенах наружных выносных шахт
Стены наружных выносных шахт работают как опоры для перекрытия, разделенного с ядром большим проемом (см. Рисунок 9).
Категорически не допускается выполнять проемы и ниши любых размеров в несущих выносных стенах [1].
Рисунок 9
1.9. Размещение ниш в стенах
1.9.1. Общие рекомендации по размещению ниш
При размещении ниш стоит учитывать правила и рекомендации, описанные в п. 1.1-1.8 данной инструкции.
Кроме того, при размещении ниш необходимо учитывать, что стенка, сохраняемая за нишей должна иметь толщину не менее 200 мм исходя из условия возможности бетонирования. В случае, когда невозможно сохранить стенку за нишей толщиной не менее 200 мм, конструктором может быть принято решение вырезать сквозной проем в данном месте (см. Рисунок 10).
Рисунок 10
1.9.2. Ниши под колоннами
В случае, если ниша расположена в стене под колонной, ее необходимо перенести так, чтобы расстояние между колонной и нишей было не менее 500 мм (см. Рисунок 11).
Рисунок 11











Нет комментариев